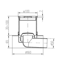
Sběrače vody